



東京都中央区新川2
東京メトロ日比谷線/茅場町駅 歩3分
JR京葉線/八丁堀駅 歩4分
東京メトロ銀座線/日本橋駅 歩12分
JR京葉線/八丁堀駅 歩4分
東京メトロ銀座線/日本橋駅 歩12分
地上12階建 / 2005年07月 / 賃貸マンション
★エリア最大級★経験豊富なスタッフが多数在籍しております♪
初期費用クレジット支払可能!オンライン内覧・オンライン契約等弊社に一度も来店せずとも問題ありません♪弊社ではネットに掲載されている物件も全てご紹介可能になりますので気になる物件は全て申し付けください★
ただいま2人が検討中!
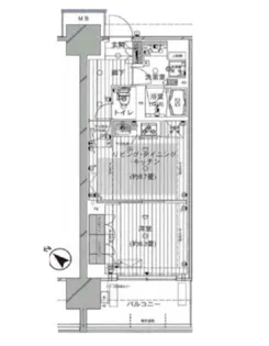
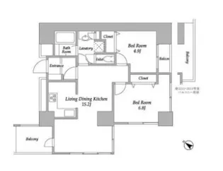
| 賃料 / 管理費 | 敷金 / 礼金 | 間取り / 面積 | 階数 部屋番号 | 方位 | 詳細を見る | |
|---|---|---|---|---|---|---|
| 21.9万円 / 1.7万円 | 21.9万円 / 21.9万円 | 2LDK / 53.06m² | 4階 ー | 北西 | 詳細を見る |



















































