



埼玉県さいたま市南区南浦和2
JR京浜東北線/南浦和駅 歩7分
JR京浜東北線/浦和駅 歩25分
JR埼京線/武蔵浦和駅 歩34分
JR京浜東北線/浦和駅 歩25分
JR埼京線/武蔵浦和駅 歩34分
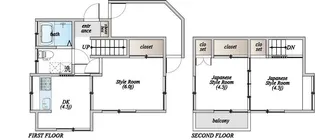
地上3階建 / 1999年07月 / 一戸建
南浦和駅から徒歩7分の分譲タイプの貸家です。
隣家駐車場がある為、とても陽当たりが良いお家です♪
ただいま1人が検討中!
| 賃料 / 管理費 | 敷金 / 礼金 | 間取り / 面積 | 階数 部屋番号 | 方位 | 詳細を見る | |
|---|---|---|---|---|---|---|
| 18.0万円 / ー | 18.0万円 / 18.0万円 | 4LDK / 103.09m² | ー ー | 南 | 詳細を見る |




































