



JR東海道本線/茨木駅 バス22分 (バス停)玉川橋団地 歩6分
阪急京都線/総持寺駅 歩40分
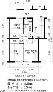
| 賃料 / 管理費 | 敷金 / 礼金 | 間取り / 面積 | 階数 部屋番号 | 方位 | 詳細を見る | |
|---|---|---|---|---|---|---|
| 5.79万円 / 3,300円 | 11.58万円 / 無料 | 2DK / 47.71m² | 3階 ー | 南 | 詳細を見る |
| 店舗名 | 都市再生機構 UR千里営業センター | |
|---|---|---|
| 住所 | 大阪府豊中市新千里東町1-4-2 千里ライフサイエンスセンタービル19階 | |
| 定休日 | 水、12月29日~1月3日 | |
| 営業時間 | 9:30~18:00 | |
| 交通 | - | |
| 免許番号 | 公団・公社()第号 | |
| 代表者名 | - | |
| 所属団体 | - | |
| TEL | 06-6871-0612 |
※店舗所在地のアイコンは、情報提供元のより頂いた住所データを基に弊社にて設置しております。実際の所在地と多少異なる場合もございますので、お問合せ・来店の際には念の為、ご確認を頂けますようお願い申しあげます。

3.75
4.00
4.00
3.00
3.50
4.00
4.00
4.17
知り合いにUR賃貸がいいとおすすめされたので、引っ越し希望エリアだったこのUR営業所にたどり着きました。問い合わせして間もなくお電話でご連絡をいただき、希望にあわせて丁寧親切に内覧案内をしていただきました。内覧当日に伺った際には、問い合わせ物件の他にも希望の条件に合わせていくつか物件をご提案していただき、その当日中にまとめて内覧をさせていただけたので、比較検討できたのがよかったです。結果的にはいちばん最初に問い合わせした部屋に決まりましたが、契約前にしっかりと見比べたうえで決めることができたので納得できました。また来店時は妻が妊娠中で体調が少し不安定だったのですが、女性のご担当の方が常に体調への気遣いや段差注意などのお声かけをしてくださったのがとても好印象でした。またお近くにお住まいとのことで、エリアの雰囲気や子育てのことも教えてもらえたのもよかったです。その後再度、内覧に訪れた際にも前回のことを覚えていてくださり、いろいろと気遣いのある対応に感謝しています。
(2019/04投稿)4.00
まず希望家賃に基づき、摂津市、池田市、豊中市の3つに絞り込み、其々現地の見学に行きました。最後に立ち寄ったのがUR賃貸さんですが、職場までの距離が一番近い事が決定した条件かもしれません。尚、団地である為に複数の部屋を拝見しましたが、部屋ごとにすこしづつ好みが違い、自分が一番気に入ったお部屋に入る事ができたところが一番の決め手かもしれません。契約時の対応を行ってくださった方は大変手際よく、過去に私が今回住もうとしているお部屋で事故などがなかったかを調べてもらいましたが、いやな顔などはせず、ご対応頂きました。また直前での入居前トラブルで台風によるガラスの破損があったそうで、お部屋の変更を打診されましたが、私としては選んだ部屋にしたいことを強く申し上げ(この祝い金制度のこともありましたが)入居予定日までに準備を進めてくださったことも高評価につながっています。もしもその時に対応が出来ないという話でしたら、ご契約には至っていなかったと思います。
(2019/03投稿)3.00
スモッカで問い合わせメールを送信して簡単ながらもわかりやすい案内をしていただいて現地見学へと行きました。 URの自社管理物件(?)のせいなのか、現地案内所では部屋の見学は担当者が付き添わないで、各自で見る形式でしたが事前の説明を聞いていたので安心して見ることができました。 見学前にカギと一緒に渡された見学用の手提げバッグにはスリッパのほかに懐中電灯やメジャー測りも入っていて家具入れの参考や狭い暗いところの見るのに役立ちました。 見学当日は仮押さえだけして後日、本契約に向かったところ閉店間際の忙しい時間帯であっても親切丁寧に対応してもらえました。 途中、車庫の空き状況や契約条件などの質問に関しても思っていたより親切な情報を頂いたり、飲み干したお茶にまで気遣っていただいたりと終始あたたかく接していただきました。 そして双方の勘違いで契約条件を途中で変更して閉店時間を過ぎてしまっても落ち着いて説明と対応をしていただき最後まで安心して契約をすますことができました。
(2018/06投稿)9:30~18:00
水、12月29日~1月3日




| 賃料 / 管理費 | 敷金 / 礼金 | 間取り / 面積 | 階数 部屋番号 | 方位 | 詳細を見る | |
|---|---|---|---|---|---|---|
| 5.79万円 / 3,300円 | 11.58万円 / 無料 | 2DK / 47.71m² | 3階 ー | 南 | 詳細を見る |




| 賃料 / 管理費 | 敷金 / 礼金 | 間取り / 面積 | 階数 部屋番号 | 方位 | 詳細を見る | |
|---|---|---|---|---|---|---|
| 6.59万円 / 3,000円 | 13.18万円 / 無料 | 2LDK / 50.58m² | 4階 ー | 南東 | 詳細を見る |




| 賃料 / 管理費 | 敷金 / 礼金 | 間取り / 面積 | 階数 部屋番号 | 方位 | 詳細を見る | |
|---|---|---|---|---|---|---|
| 8.95万円 / 5,400円 | 17.9万円 / 無料 | 2DK / 55.95m² | 2階 ー | 南 | 詳細を見る |




| 賃料 / 管理費 | 敷金 / 礼金 | 間取り / 面積 | 階数 部屋番号 | 方位 | 詳細を見る | |
|---|---|---|---|---|---|---|
| 8.55万円 / 5,400円 | 17.1万円 / 無料 | 2DK / 52.96m² | 4階 ー | 南 | 詳細を見る |




| 賃料 / 管理費 | 敷金 / 礼金 | 間取り / 面積 | 階数 部屋番号 | 方位 | 詳細を見る | |
|---|---|---|---|---|---|---|
| 8.64万円 / 3,600円 | 17.28万円 / 無料 | 2LDK / 63.89m² | 4階 ー | 南西 | 詳細を見る |





| 賃料 / 管理費 | 敷金 / 礼金 | 間取り / 面積 | 階数 部屋番号 | 方位 | 詳細を見る | |
|---|---|---|---|---|---|---|
| 8.84万円 / 4,900円 | 17.68万円 / 無料 | 2DK / 49.91m² | 2階 ー | 南 | 詳細を見る |




| 賃料 / 管理費 | 敷金 / 礼金 | 間取り / 面積 | 階数 部屋番号 | 方位 | 詳細を見る | |
|---|---|---|---|---|---|---|
| 5.25万円 / 3,300円 | 10.5万円 / 無料 | 2DK / 47.71m² | 4階 ー | 南 | 詳細を見る |




| 賃料 / 管理費 | 敷金 / 礼金 | 間取り / 面積 | 階数 部屋番号 | 方位 | 詳細を見る | |
|---|---|---|---|---|---|---|
| 6.31万円 / 3,000円 | 12.62万円 / 無料 | 3DK / 50.58m² | 5階 ー | 南 | 詳細を見る |




| 賃料 / 管理費 | 敷金 / 礼金 | 間取り / 面積 | 階数 部屋番号 | 方位 | 詳細を見る | |
|---|---|---|---|---|---|---|
| 10.53万円 / 5,400円 | 21.06万円 / 無料 | 3DK / 65.95m² | 2階 ー | 南西 | 詳細を見る |




| 賃料 / 管理費 | 敷金 / 礼金 | 間取り / 面積 | 階数 部屋番号 | 方位 | 詳細を見る | |
|---|---|---|---|---|---|---|
| 12.17万円 / 5,500円 | 24.34万円 / 無料 | 4LDK / 84.31m² | 1階 ー | 南東 | 詳細を見る |





| 賃料 / 管理費 | 敷金 / 礼金 | 間取り / 面積 | 階数 部屋番号 | 方位 | 詳細を見る | |
|---|---|---|---|---|---|---|
| 6.34万円 / 3,300円 | 12.68万円 / 無料 | 2LDK / 56.69m² | 1階 ー | 南 | 詳細を見る |




| 賃料 / 管理費 | 敷金 / 礼金 | 間取り / 面積 | 階数 部屋番号 | 方位 | 詳細を見る | |
|---|---|---|---|---|---|---|
| 7.53万円 / 5,500円 | 15.06万円 / 無料 | 2DK / 51.21m² | 4階 ー | 南 | 詳細を見る |




| 賃料 / 管理費 | 敷金 / 礼金 | 間取り / 面積 | 階数 部屋番号 | 方位 | 詳細を見る | |
|---|---|---|---|---|---|---|
| 9.81万円 / 1,900円 | 19.62万円 / 無料 | 3LDK / 75.04m² | 4階 ー | 南 | 詳細を見る |




| 賃料 / 管理費 | 敷金 / 礼金 | 間取り / 面積 | 階数 部屋番号 | 方位 | 詳細を見る | |
|---|---|---|---|---|---|---|
| 4.81万円 / 3,000円 | 9.62万円 / 無料 | 2DK / 39.47m² | 5階 ー | 南西 | 詳細を見る |




| 賃料 / 管理費 | 敷金 / 礼金 | 間取り / 面積 | 階数 部屋番号 | 方位 | 詳細を見る | |
|---|---|---|---|---|---|---|
| 6.79万円 / 4,300円 | 13.58万円 / 無料 | 1LDK / 50.21m² | 7階 ー | 南東 | 詳細を見る |





| 賃料 / 管理費 | 敷金 / 礼金 | 間取り / 面積 | 階数 部屋番号 | 方位 | 詳細を見る | |
|---|---|---|---|---|---|---|
| 6.79万円 / 4,300円 | 13.58万円 / 無料 | 1LDK / 50.21m² | 6階 ー | 南 | 詳細を見る |




| 賃料 / 管理費 | 敷金 / 礼金 | 間取り / 面積 | 階数 部屋番号 | 方位 | 詳細を見る | |
|---|---|---|---|---|---|---|
| 8.5万円 / 5,500円 | 17.0万円 / 無料 | 2LDK / 59.97m² | 4階 ー | 南東 | 詳細を見る |




| 賃料 / 管理費 | 敷金 / 礼金 | 間取り / 面積 | 階数 部屋番号 | 方位 | 詳細を見る | |
|---|---|---|---|---|---|---|
| 10.84万円 / 5,500円 | 21.68万円 / 無料 | 3LDK / 73.95m² | 1階 ー | 南東 | 詳細を見る |




| 賃料 / 管理費 | 敷金 / 礼金 | 間取り / 面積 | 階数 部屋番号 | 方位 | 詳細を見る | |
|---|---|---|---|---|---|---|
| 8.65万円 / 5,500円 | 17.3万円 / 無料 | 3DK / 64.85m² | 1階 ー | 南東 | 詳細を見る |




| 賃料 / 管理費 | 敷金 / 礼金 | 間取り / 面積 | 階数 部屋番号 | 方位 | 詳細を見る | |
|---|---|---|---|---|---|---|
| 7.75万円 / 3,200円 | 15.5万円 / 無料 | 3LDK / 70.68m² | 1階 ー | 南 | 詳細を見る |





| 賃料 / 管理費 | 敷金 / 礼金 | 間取り / 面積 | 階数 部屋番号 | 方位 | 詳細を見る | |
|---|---|---|---|---|---|---|
| 6.03万円 / 3,000円 | 12.06万円 / 無料 | 1DK / 45.38m² | 4階 ー | 南 | 詳細を見る |




| 賃料 / 管理費 | 敷金 / 礼金 | 間取り / 面積 | 階数 部屋番号 | 方位 | 詳細を見る | |
|---|---|---|---|---|---|---|
| 9.7万円 / 3,600円 | 19.4万円 / 無料 | 3LDK / 69.53m² | 5階 ー | 南 | 詳細を見る |




| 賃料 / 管理費 | 敷金 / 礼金 | 間取り / 面積 | 階数 部屋番号 | 方位 | 詳細を見る | |
|---|---|---|---|---|---|---|
| 9.21万円 / 4,500円 | 18.42万円 / 無料 | 2LDK / 66m² | 2階 ー | 南西 | 詳細を見る |




| 賃料 / 管理費 | 敷金 / 礼金 | 間取り / 面積 | 階数 部屋番号 | 方位 | 詳細を見る | |
|---|---|---|---|---|---|---|
| 5.67万円 / 3,300円 | 11.34万円 / 無料 | 2LDK / 56.69m² | 5階 ー | 南 | 詳細を見る |




| 賃料 / 管理費 | 敷金 / 礼金 | 間取り / 面積 | 階数 部屋番号 | 方位 | 詳細を見る | |
|---|---|---|---|---|---|---|
| 6.69万円 / 4,300円 | 13.38万円 / 無料 | 1LDK / 49.18m² | 5階 ー | 南 | 詳細を見る |





| 賃料 / 管理費 | 敷金 / 礼金 | 間取り / 面積 | 階数 部屋番号 | 方位 | 詳細を見る | |
|---|---|---|---|---|---|---|
| 7.98万円 / 3,000円 | 15.96万円 / 無料 | 3LDK / 64.49m² | 2階 ー | 南 | 詳細を見る |




| 賃料 / 管理費 | 敷金 / 礼金 | 間取り / 面積 | 階数 部屋番号 | 方位 | 詳細を見る | |
|---|---|---|---|---|---|---|
| 5.23万円 / 3,000円 | 10.46万円 / 無料 | 2DK / 43.06m² | 5階 ー | 南 | 詳細を見る |




| 賃料 / 管理費 | 敷金 / 礼金 | 間取り / 面積 | 階数 部屋番号 | 方位 | 詳細を見る | |
|---|---|---|---|---|---|---|
| 9.06万円 / 4,900円 | 18.12万円 / 無料 | 2DK / 49.91m² | 8階 ー | 南 | 詳細を見る |




| 賃料 / 管理費 | 敷金 / 礼金 | 間取り / 面積 | 階数 部屋番号 | 方位 | 詳細を見る | |
|---|---|---|---|---|---|---|
| 6.46万円 / 3,000円 | 12.92万円 / 無料 | 2DK / 47.99m² | 4階 ー | 南西 | 詳細を見る |




| 賃料 / 管理費 | 敷金 / 礼金 | 間取り / 面積 | 階数 部屋番号 | 方位 | 詳細を見る | |
|---|---|---|---|---|---|---|
| 6.79万円 / 4,300円 | 13.58万円 / 無料 | 1LDK / 50.21m² | 5階 ー | 南 | 詳細を見る |
お気に入り物件に
追加しました
現在0件保存されています
残り50件追加することができます
削除しました。