



広島県東広島市西条町吉行
JR山陽本線/西条駅 歩25分
地上2階建 / 1986年01月 / 一戸建
オール電化住宅なのでガス代を節約できるのが嬉しいポイント。
IHコンロ付きキッチン。お料理や後片付けのしやすさが魅力的。電化住宅なのでガス代不要。地下水のため、水道代不要。物価高騰の最中、公共料金の支出が抑えられて家計に嬉しい
ただいま5人が検討中! 人気上昇中!注目の物件です!
| 賃料 / 管理費 | 敷金 / 礼金 | 間取り / 面積 | 階数 部屋番号 | 方位 | 詳細を見る | |
|---|---|---|---|---|---|---|
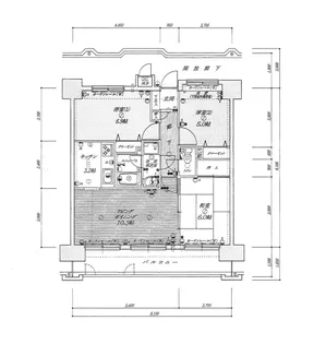
| 6.0万円 / ー | 12.0万円 / 6.0万円 | 2LDK / 72.7m² | ー ー | ー | 詳細を見る |





























































