



東京都目黒区中目黒1
東京メトロ日比谷線/中目黒駅 歩5分
東急東横線/代官山駅 歩8分
東急東横線/代官山駅 歩8分
地上5階建 / 2017年01月 / 賃貸マンション
こだわりで選びたい方におすすめ。目黒区エリアで住まいをお探し
こだわりで選びたい方におすすめ。目黒区エリアで住まいをお探しなら「iON中目黒West」。不在時でも荷物を受け取ることができるため、時間調整の手間が省ける宅配ボックスが付いています。新築マンションです
ただいま21人が検討中! 人気上昇中!注目の物件です!
| 賃料 / 管理費 | 敷金 / 礼金 | 間取り / 面積 | 階数 部屋番号 | 方位 | 詳細を見る | |
|---|---|---|---|---|---|---|
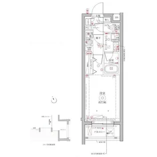
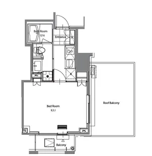
| 10.0万円 / 1.0万円 | 10.0万円 / 20.0万円 | 1R / 20.25m² | 2階 ー | 南東 | 詳細を見る |




























































