



兵庫県尼崎市武庫之荘9
阪急神戸線/武庫之荘駅 バス15分 (バス停)阪神バス武庫荘総合高校 歩5分
阪神本線/尼崎駅 バス35分 (バス停)阪神バス時友 歩5分
阪急神戸線/武庫之荘駅 歩35分
阪神本線/尼崎駅 バス35分 (バス停)阪神バス時友 歩5分
阪急神戸線/武庫之荘駅 歩35分
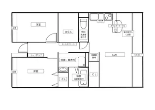
地上6階建 / 1995年 / 賃貸アパート
フルリノベーション中!!
ただいま1人が検討中!
| 賃料 / 管理費 | 敷金 / 礼金 | 間取り / 面積 | 階数 部屋番号 | 方位 | 詳細を見る | |
|---|---|---|---|---|---|---|
| 8.5万円 / 2,000円 | 無料 / 無料 | 2LDK / 65.3m² | 1階 ー | 南 | 詳細を見る |

