



千葉県浦安市猫実3
東京メトロ東西線/浦安駅 歩6分
JR京葉線/新浦安駅 バス9分 (バス停)神明裏 歩1分
東京メトロ東西線/南行徳駅 歩18分
JR京葉線/新浦安駅 バス9分 (バス停)神明裏 歩1分
東京メトロ東西線/南行徳駅 歩18分
地上3階建 / 2001年03月 / 賃貸マンション
エイブルでご契約の方は当物件の仲介手数料が家賃の55%!
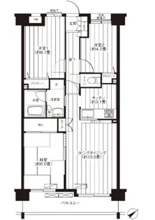
仲介手数料家賃の0.55ヶ月分(税込)。大型スーパーへ160m。ローソンへ220m。経済的な都市ガス使用。東西線浦安駅から大手町駅まで快速で16分。駅までフラット。オンライン対応相談可。
ただいま1人が検討中!
| 賃料 / 管理費 | 敷金 / 礼金 | 間取り / 面積 | 階数 部屋番号 | 方位 | 詳細を見る | |
|---|---|---|---|---|---|---|
| 6.8万円 / 2,000円 | 6.8万円 / 6.8万円 | 1K / 22.04m² | 1階 ー | 南 | 詳細を見る |



































