



茨城県水戸市千波町
JR常磐線/水戸駅 バス5分 (バス停)千波小学校前 歩3分
地上2階建 / 2021年04月 / 賃貸アパート
初期費用が節約できる礼金不要のアパートがあります
共用部には宅配ボックスが備え付けられているため、非対面での荷物の受け取りが可能です。知らない人が来た時でも玄関を開ける必要がなくなるモニター付きインターホンを備えております。
ただいま2人が検討中!
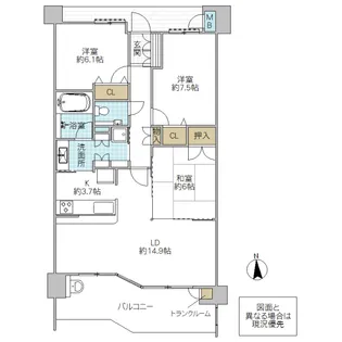
| 賃料 / 管理費 | 敷金 / 礼金 | 間取り / 面積 | 階数 部屋番号 | 方位 | 詳細を見る | |
|---|---|---|---|---|---|---|
| 6.5万円 / 2,000円 | 6.5万円 / 無料 | 2LDK / 55.66m² | 2階 ー | 南西 | 詳細を見る |




























































