



広島県東広島市高屋高美が丘5
バス/高美が丘中央 歩3分
JR山陽本線/西高屋駅 歩20分
JR山陽本線/西高屋駅 歩20分
地上3階建 / 1992年08月 / 賃貸マンション
インターネット利用料込み。近畿大学まで1700m自転車通学可!南向きで陽当たり良。学生さんにおすすめです。仲介手数料・礼金・管理費不要。お気軽にお問い合わせください。
ただいま3人が検討中!
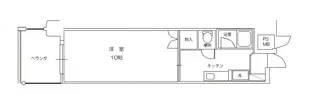
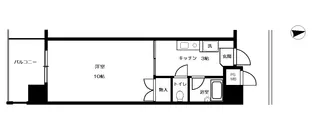
| 賃料 / 管理費 | 敷金 / 礼金 | 間取り / 面積 | 階数 部屋番号 | 方位 | 詳細を見る | |
|---|---|---|---|---|---|---|
| 2.98万円 / ー | 8.94万円 / 無料 | 1R / 18.9m² | 2階 ー | 南 | 詳細を見る |







