



埼玉県北葛飾郡杉戸町倉松5
東武伊勢崎線/東武動物公園駅 歩20分
東武伊勢崎線/姫宮駅 歩43分
東武日光線/杉戸高野台駅 歩45分
東武伊勢崎線/姫宮駅 歩43分
東武日光線/杉戸高野台駅 歩45分
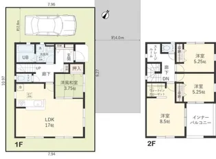
地上1階建 / 1984年05月 / 一戸建
気兼ねなく暮らしたい!そんな方にオススメの平屋建賃貸住宅です
2DKの一戸建です!駐車場は徒歩1分の所に月極駐車場あります!経済的な都市ガス仕様!エアコン完備!
ただいま25人が検討中! 人気上昇中!注目の物件です!
| 賃料 / 管理費 | 敷金 / 礼金 | 間取り / 面積 | 階数 部屋番号 | 方位 | 詳細を見る | |
|---|---|---|---|---|---|---|
| 4.0万円 / 2,000円 | 4.0万円 / 無料 | 2DK / 41.8m² | ー ー | 南西 | 詳細を見る |























































