



東京都目黒区大橋2
東急田園都市線/池尻大橋駅 歩4分
京王井の頭線/駒場東大前駅 歩10分
京王井の頭線/神泉駅 歩18分
京王井の頭線/駒場東大前駅 歩10分
京王井の頭線/神泉駅 歩18分
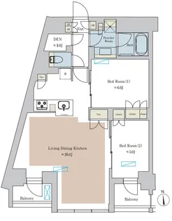
地下1地上7階建 / 新築(2025年01月) / 賃貸マンション
★新築★池尻大橋徒歩4分★ネット無料★駐車場有★
【内覧予約受付中】→詳細は渋谷区・港区・目黒区特化のリアルビジョンへお問い合わせくださいませ☆彡
ただいま1人が検討中!
| 賃料 / 管理費 | 敷金 / 礼金 | 間取り / 面積 | 階数 部屋番号 | 方位 | 詳細を見る | |
|---|---|---|---|---|---|---|
| 20.9万円 / 1.5万円 | 20.9万円 / 20.9万円 | 1LDK / 31.62m² | 5階 ー | 北 | 詳細を見る |




























































