



東京都港区白金1
東京メトロ南北線/白金高輪駅 歩3分
都営大江戸線/麻布十番駅 歩17分
都営浅草線/泉岳寺駅 歩17分
都営大江戸線/麻布十番駅 歩17分
都営浅草線/泉岳寺駅 歩17分
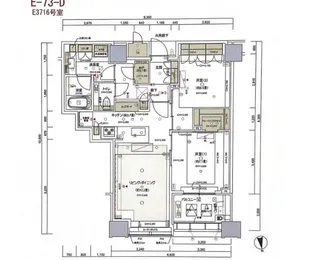
地下1地上45階建 / 2022年02月 / 賃貸マンション
分譲賃貸マンション コンシェルジュサービスあり
東京の高級賃貸・ファミリー物件の仲介・管理・売買をお探しの方は、高級物件専門のプライムコーポレーションへ/海外転勤・国内転勤・入居審査・条件交渉等お任せ下さい/オンライン内見・オンライン契約対応可能。
ただいま1人が検討中!
| 賃料 / 管理費 | 敷金 / 礼金 | 間取り / 面積 | 階数 部屋番号 | 方位 | 詳細を見る | |
|---|---|---|---|---|---|---|
| 51.0万円 / 1.5万円 | 51.0万円 / 51.0万円 | 2LDK / 65.95m² | 6階 ー | 北 | 詳細を見る |






















































