



東京都調布市東つつじケ丘2
京王線/つつじヶ丘駅 歩5分
京王線/仙川駅 歩13分
京王線/柴崎駅 歩18分
京王線/仙川駅 歩13分
京王線/柴崎駅 歩18分
地上4階建 / 1988年01月 / 賃貸マンション
◇圧倒的な人気物件◇駅徒歩5分の好立地にオートロック付◇
◇住環境良好で日当たり良好と文句なしのお部屋です◇京王線沿線のお部屋探しは地域密着のウィンズにお任せ下さい。皆様のお部屋探しを一生懸命お手伝い致します◇
ただいま1人が検討中!
| 賃料 / 管理費 | 敷金 / 礼金 | 間取り / 面積 | 階数 部屋番号 | 方位 | 詳細を見る | |
|---|---|---|---|---|---|---|
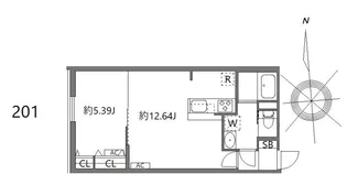
| 12.0万円 / ー | 24.0万円 / 無料 | 3DK / 58m² | 2階 ー | 南 | 詳細を見る |




























































