東京都大田区西馬込1丁目
東京都浅草線/西馬込 徒歩6分
東京都浅草線/馬込 徒歩14分
東急池上線/長原 徒歩20分
東京都浅草線/馬込 徒歩14分
東急池上線/長原 徒歩20分
地上4階建 / 2000年05月 / 賃貸マンション
★クレジット/分割決済可能★オンライン見学受付中★その他専任物件多数ございます★
ただいま11人が検討中! 人気上昇中!注目の物件です!
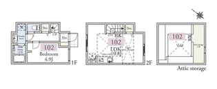
| 賃料 / 管理費 | 敷金 / 礼金 | 間取り / 面積 | 階数 部屋番号 | 方位 | 詳細を見る | |
|---|---|---|---|---|---|---|
| 7.5万円 / 7,000円 | 7.5万円 / 7.5万円 | 1K / 19.44m² | 3階 ー | 北東 | 詳細を見る |

























































