



香川県さぬき市志度
JR高徳線/志度駅 歩24分
高松琴平電鉄志度線/琴電志度駅 歩24分
高松琴平電鉄志度線/琴電志度駅 歩24分
地上2階建 / 1990年03月 / 賃貸アパート
光インターネット使用料無料で、エアコン・洗濯機・照明器具付き
光インターネット使用料無料で、エアコン・洗濯機・照明器具・IHコンロ付き。国道11号線沿いで高台に立地しています。
ただいま2人が検討中!
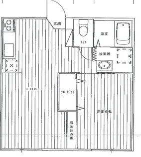
| 賃料 / 管理費 | 敷金 / 礼金 | 間取り / 面積 | 階数 部屋番号 | 方位 | 詳細を見る | |
|---|---|---|---|---|---|---|
| 1.5万円 / ー | 無料 / 無料 | 1K / 22.8m² | 2階 ー | 南 | 詳細を見る |




























































