

10.5万円
管理費ー
敷無料礼無料
小田急線/成城学園前駅 歩21分
京王線/仙川駅 バス6分 (バス停)成城八丁目 歩5分
小田急線/喜多見駅 歩22分
京王線/仙川駅 バス6分 (バス停)成城八丁目 歩5分
小田急線/喜多見駅 歩22分
東京都調布市入間町3
2K / 35.64m²
地上2階建
築56年
ただいま 18人 が検討中!
| 店舗名 | (株)不動産工房 |
|---|---|
| 住所 | 東京都世田谷区砧8-8-23 |
| 定休日 | 水曜日 |
| 営業時間 | 10:00~19:00 |
| 交通 | - |
| 免許番号 | 東京都知事(3)第89793号 |
| 代表者名 | - |
| 所属団体 | (公社)全日本不動産協会東京都本部会員 (公社)首都圏不動産公正取引協議会加盟 |
| TEL | 03-3417-0031 |

10:00~19:00
水曜日


10.5万円
管理費ー
2K / 35.64m²
地上2階建
築56年


5.1万円
管理費1,000円
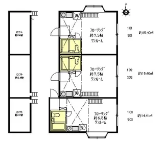
1R / 14.41m²
2階 / 地上2階建
築34年 / 賃貸アパート


5.5万円
管理費ー
1K / 20.67m²
1階 / 地上2階建
築31年 / 賃貸アパート


17.7万円
管理費ー
3LDK / 64.88m²
3階 / 地上5階建
築22年 / 賃貸マンション
現在0件保存されています。
あと50件保存することができます。
お気に入りページから保存した物件が確認できます。

削除しました。