



静岡県浜松市中央区曳馬5
遠州鉄道/曳馬駅 歩2分
バス/曳馬橋 歩9分
遠州鉄道/助信駅 歩14分
バス/曳馬橋 歩9分
遠州鉄道/助信駅 歩14分
地上2階建 / 2015年06月 / 一戸建
お問い合わせは不動産本舗まで!
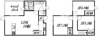
通勤、通学に便利な沿線物件!曳馬駅まで徒歩2分!上島小学校区・曳馬中学校区でお探しの方にオススメ☆使い勝手の良いオール洋室の3LDK戸建て☆人気のキャレブランシリーズの戸建です♪
ただいま1人が検討中!
| 賃料 / 管理費 | 敷金 / 礼金 | 間取り / 面積 | 階数 部屋番号 | 方位 | 詳細を見る | |
|---|---|---|---|---|---|---|
| 13.5万円 / ー | 27.0万円 / 13.5万円 | 3LDK / 96m² | 2階 ー | 南 | 詳細を見る |




























































