



東京都中央区日本橋浜町1
都営新宿線/浜町駅 歩3分
都営浅草線/東日本橋駅 歩6分
JR総武線快速/馬喰町駅 歩10分
都営浅草線/東日本橋駅 歩6分
JR総武線快速/馬喰町駅 歩10分
地上11階建 / 2001年09月 / 賃貸マンション
インターネットに掲載している物件全てご紹介可能です!
エリア最大級経験豊富なスタッフ多数在籍しております♪お探しのエリアや希望駅付近での店舗のご予約も承ります!オンライン内見・ミーティング可能となりますのでお気軽にお問い合わせ下さい♪相談だけでも可能です
ただいま1人が検討中!
| 賃料 / 管理費 | 敷金 / 礼金 | 間取り / 面積 | 階数 部屋番号 | 方位 | 詳細を見る | |
|---|---|---|---|---|---|---|
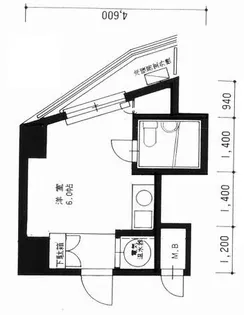
| 8.7万円 / 7,000円 | 8.7万円 / 8.7万円 | 1K / 22.45m² | 3階 ー | 南東 | 詳細を見る |






















































