NEW
メゾンクレール【1階】| 店舗名 | (株)十和田宅建メイト |
|---|---|
| 住所 | 青森県十和田市東二十三番町 29-30 |
| 定休日 | 日曜日、祝日 |
| 営業時間 | 9:00~18:00 |
| 交通 | - |
| 免許番号 | 青森県知事(2)第3561号 |
| 代表者名 | - |
| 所属団体 | (公社)青森県宅地建物取引業協会会員 東北地区不動産公正取引協議会加盟 |
| TEL | 0176-22-4011 |

9:00~18:00
日曜日、祝日


6.3万円
管理費ー
1LDK / 40.37m²
1階 / 地上2階建
新築 / 賃貸アパート


6.5万円
管理費2,000円
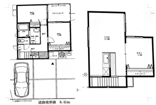
3LDK / 73.6m²
地上2階建
築16年


6.2万円
管理費ー
1LDK / 45.54m²
1階 / 地上2階建
築1年 / 賃貸アパート
現在0件保存されています。
あと50件保存することができます。
お気に入りページから保存した物件が確認できます。

削除しました。