



大阪府大阪市西区西本町2
地下鉄中央線/阿波座駅 歩3分
地下鉄千日前線/阿波座駅 歩3分
地下鉄御堂筋線/本町駅 歩7分
地下鉄千日前線/阿波座駅 歩3分
地下鉄御堂筋線/本町駅 歩7分
地上15階建 / 2021年11月 / 賃貸マンション
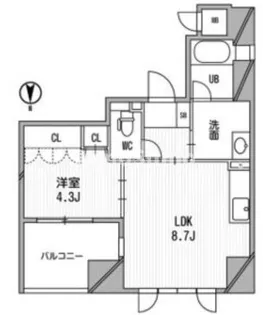
新着物件♪ 阿波座駅徒歩3分!最上階角部屋南向きの2LDK!
大阪市内、特に西区、福島区、港区、此花区を中心にオススメ物件を多数取り揃えております。経験豊富なベテランスタッフがお客様にピッタリな物件をご紹介させて頂きます♪
ただいま6人が検討中! 人気上昇中!注目の物件です!
| 賃料 / 管理費 | 敷金 / 礼金 | 間取り / 面積 | 階数 部屋番号 | 方位 | 詳細を見る | |
|---|---|---|---|---|---|---|
| 15.7万円 / 1.2万円 | 無料 / 31.4万円 | 2LDK / 43.67m² | 15階 ー | 南 | 詳細を見る |





























































