



大阪府大阪市北区豊崎5
地下鉄御堂筋線/中津駅 歩1分
地下鉄御堂筋線/梅田駅 歩7分
地下鉄谷町線/中崎町駅 歩16分
地下鉄御堂筋線/梅田駅 歩7分
地下鉄谷町線/中崎町駅 歩16分
地上15階建 / 2007年12月 / 賃貸マンション
家具家電付き対応可能物件!単身赴任の方にも人気のマンション!
今、人気のグランフロント大阪徒歩圏内のエリアです!家具付き・ペット可・デザイナーズなどなどお問合せはツインホーム 西梅田店まで!!
| 賃料 / 管理費 | 敷金 / 礼金 | 間取り / 面積 | 階数 部屋番号 | 方位 | 詳細を見る | |
|---|---|---|---|---|---|---|
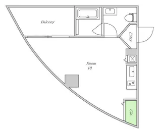
| 7.0万円 / 6,000円 | 無料 / 10.0万円 | 1K / 25.18m² | 3階 ー | 南 | 詳細を見る |




























































