NEW
二和壱番館【2階】5.9万円
管理費4,000円
敷無料礼無料
京成電鉄松戸線/二和向台 徒歩7分
京成電鉄松戸線/三咲 徒歩20分
京成電鉄松戸線/鎌ヶ谷大仏 徒歩16分
京成電鉄松戸線/三咲 徒歩20分
京成電鉄松戸線/鎌ヶ谷大仏 徒歩16分
千葉県船橋市二和東6丁目
1K / 20.45m²
2階 / 地上2階建
築4年 / 賃貸アパート
ただいま 2人 が検討中!
| 店舗名 | (株)グッドライフ |
|---|---|
| 住所 | 千葉県鎌ケ谷市南初富6-5-54-102 |
| 定休日 | - |
| 営業時間 | 9:00~18:00 |
| 交通 | - |
| 免許番号 | 千葉県知事(3)第16395号 |
| 代表者名 | - |
| 所属団体 | (公社)全日本不動産協会千葉県本部会員 (公社)首都圏不動産公正取引協議会加盟 |
| TEL | 047-404-6291 |

9:00~18:00
5.9万円
管理費4,000円
1K / 20.45m²
2階 / 地上2階建
築4年 / 賃貸アパート


4.7万円
管理費2,000円
2DK / 37.38m²
2階 / 地上2階建
築39年 / 賃貸アパート


6.0万円
管理費ー
2DK / 42.42m²
2階 / 地上2階建
築32年 / 賃貸アパート


5.0万円
管理費3,000円
1K / 19.98m²
2階 / 地上2階建
築9年 / 賃貸アパート


3.5万円
管理費2,000円
1K / 17.28m²
1階 / 地上2階建
築34年 / 賃貸アパート


3.5万円
管理費2,000円
1K / 17.28m²
1階 / 地上2階建
築34年 / 賃貸アパート


6.9万円
管理費ー
2LDK / 53.96m²
2階 / 地上2階建
築27年 / 賃貸アパート


7.9万円
管理費3,000円
3LDK / 81.69m²
地上2階建
築37年


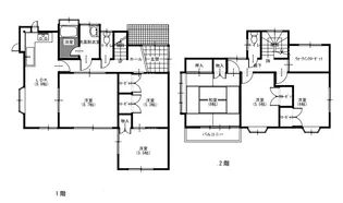
13.5万円
管理費ー
6SLDK / 138.47m²
地上2階建
築38年


15.0万円
管理費1.0万円
3LDK / 71.68m²
6階 / 地上12階建
築46年 / 賃貸マンション
現在0件保存されています。
あと50件保存することができます。
お気に入りページから保存した物件が確認できます。

削除しました。