



山口県岩国市南岩国町4
JR山陽本線/南岩国駅 歩16分
恵美須/岩国バス 歩2分
恵美須/岩国バス 歩2分
地上2階建 / 2014年11月 / 一戸建
日当たり良く、買い物も便利な立地です。駐車場は2台付(縦列)
日当たり良く、買い物も便利な立地です。2階部分ですが、平屋感覚で暮らせます。
ただいま5人が検討中! 人気上昇中!注目の物件です!
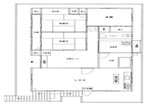
| 賃料 / 管理費 | 敷金 / 礼金 | 間取り / 面積 | 階数 部屋番号 | 方位 | 詳細を見る | |
|---|---|---|---|---|---|---|
| 7.3万円 / ー | 14.6万円 / 無料 | 3LDK / 95m² | 2階 ー | 北西 | 詳細を見る |





