

38.0万円
管理費ー
敷76.0万円礼無料
阪急神戸線/御影駅 バス12分 (バス停)鴨子ヶ原2丁目 歩4分
兵庫県神戸市東灘区鴨子ケ原2
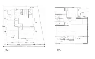
3LDK / 95.57m²
地上2階建
築21年
ただいま 2人 が検討中!
| 店舗名 | Core Eight(株) |
|---|---|
| 住所 | 兵庫県神戸市中央区山本通2-9-13-104A 北野アレー |
| 定休日 | (水)(日)(祝) |
| 営業時間 | 10~18時 |
| 交通 | - |
| 免許番号 | 兵庫県知事(1)第11798号 |
| 代表者名 | - |
| 所属団体 | (一社)兵庫県宅地建物取引業協会会員 (公社)近畿地区不動産公正取引協議会加盟 |
| TEL | 078-231-8221 |

10~18時
(水)(日)(祝)


38.0万円
管理費ー
3LDK / 95.57m²
地上2階建
築21年


24.5万円
管理費1.5万円
3SLDK / 148m²
2階 / 地上9階建
築48年 / 賃貸マンション


45.0万円
管理費ー
3LDK / 98.28m²
5階 / 地下1地上7階建
築21年 / 賃貸マンション


4.2万円
管理費3,000円
1K / 18m²
3階 / 地上3階建
築30年 / 賃貸マンション


5.9万円
管理費6,000円
1K / 28.62m²
3階 / 地上4階建
築47年 / 賃貸マンション
現在0件保存されています。
あと50件保存することができます。
お気に入りページから保存した物件が確認できます。

削除しました。