



東京都八王子市明神町1
京王線/京王八王子駅 歩7分
JR中央線/八王子駅 歩13分
JR中央線/八王子駅 歩13分
地上3階建 / 1980年01月 / 賃貸マンション
ネット無料・都市ガス・室内洗濯機置場・バルコニー・エアコン
◆初期費用・最安値宣言◆お部屋探しは【いえらび】にお任せ下さい◆ネットで掲載している賃貸物件全てご紹介可能です(他社様掲載物件含む)◆家賃交渉、審査等なんでもご相談ください◆クレジット決済可能◆
ただいま13人が検討中! 人気上昇中!注目の物件です!
| 賃料 / 管理費 | 敷金 / 礼金 | 間取り / 面積 | 階数 部屋番号 | 方位 | 詳細を見る | |
|---|---|---|---|---|---|---|
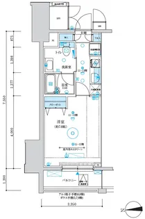
| 6.0万円 / ー | 無料 / 無料 | 1K / 21.7m² | 3階 ー | 南東 | 詳細を見る |




























































