



東京都大田区東六郷1
京急本線/雑色駅 歩7分
京急空港線/糀谷駅 歩16分
京急本線/京急蒲田駅 歩17分
京急空港線/糀谷駅 歩16分
京急本線/京急蒲田駅 歩17分
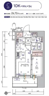
地下1地上4階建 / 新築(2025年01月) / 賃貸マンション
20時以降のご案内、ご対応も相談可能。初期費用分割可。
弊社キャンペーン対象物件につき仲介手数料がなんと60%0ff。条件によりキャンペーン内容が異なるので詳しくは弊社までお問い合わせを。弊社は仲介業者なのでスーモ等に掲載していない物件でも全て紹介可能。
| 賃料 / 管理費 | 敷金 / 礼金 | 間取り / 面積 | 階数 部屋番号 | 方位 | 詳細を見る | |
|---|---|---|---|---|---|---|
| 10.2万円 / 1.8万円 | 無料 / 無料 | 1R / 25.38m² | 3階 ー | ー | 詳細を見る |





















































