



東京都豊島区上池袋1
JR山手線/大塚駅 歩10分
都電荒川線/巣鴨新田駅 歩5分
都営三田線/西巣鴨駅 歩17分
都電荒川線/巣鴨新田駅 歩5分
都営三田線/西巣鴨駅 歩17分
地上4階建 / 2022年07月 / 賃貸マンション
【R.select池袋店 】
【LINEで簡単にお部屋探し】【内覧代行やLINEでお部屋探し】【来店不要で契約締結も可能です!】【様々なご職業の方ご相談可能】【営業時間10 20時 お仕事終わりでもご対応可能です!】
ただいま2人が検討中!
| 賃料 / 管理費 | 敷金 / 礼金 | 間取り / 面積 | 階数 部屋番号 | 方位 | 詳細を見る | |
|---|---|---|---|---|---|---|
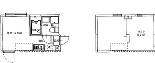
| 8.8万円 / 7,000円 | 無料 / 8.8万円 | 1K / 22.92m² | 1階 ー | 南西 | 詳細を見る |




























































