



東京都目黒区碑文谷6
東急東横線/学芸大学駅 歩10分
地上3階建 / 築1年以内(2025年06月) / 一戸建
暮らす人をやさしく包み込むくつろぎの家
オール電化☆太陽光発電あり☆食洗機付き☆室内ペット相談可(諸条件有)☆駐車スペース1台分有☆住環境良好☆/一時使用賃貸借契約
ただいま1人が検討中!
| 賃料 / 管理費 | 敷金 / 礼金 | 間取り / 面積 | 階数 部屋番号 | 方位 | 詳細を見る | |
|---|---|---|---|---|---|---|
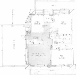
| 58.0万円 / ー | 116.0万円 / 58.0万円 | 2SLDK / 113.76m² | ー ー | 北 | 詳細を見る |




























































