



東京都品川区戸越4
東急大井町線/戸越公園駅 歩4分
都営浅草線/戸越駅 歩6分
東急池上線/戸越銀座駅 歩10分
都営浅草線/戸越駅 歩6分
東急池上線/戸越銀座駅 歩10分
地上15階建 / 2018年02月 / 賃貸マンション
こちらは通風良好な物件です
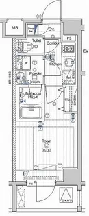
収納はシューズボックス・クロゼットなどが備え付けられているので、衣類や日用品の収納に重宝します。共用部にはゴミ出し24時間OK・宅配ボックスなどが揃っており、とても充実しています。
ただいま8人が検討中! 人気上昇中!注目の物件です!
| 賃料 / 管理費 | 敷金 / 礼金 | 間取り / 面積 | 階数 部屋番号 | 方位 | 詳細を見る | |
|---|---|---|---|---|---|---|
| 11.0万円 / 1.5万円 | 11.0万円 / 11.0万円 | 1K / 25.5m² | 11階 ー | 南西 | 詳細を見る |






















































