



埼玉県川口市柳根町
JR武蔵野線/東浦和駅 歩22分
埼玉高速鉄道/新井宿駅 歩45分
JR京浜東北線/蕨駅 歩48分
埼玉高速鉄道/新井宿駅 歩45分
JR京浜東北線/蕨駅 歩48分
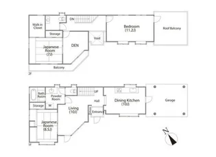
地上2階建 / 1988年03月 / 一戸建
当社は総合仲介の為、他社様の物件も一括でご紹介可能です。
人気の無料駐車場付き物件の為、お早目のお問い合わせお待ちしております。
ただいま3人が検討中!
| 賃料 / 管理費 | 敷金 / 礼金 | 間取り / 面積 | 階数 部屋番号 | 方位 | 詳細を見る | |
|---|---|---|---|---|---|---|
| 12.0万円 / ー | 12.0万円 / 12.0万円 | 4DK / 73.7m² | 1-2階 ー | 北 | 詳細を見る |

























































