

11.5万円
管理費5,000円
敷無料礼無料
八王子駅/バス20分 「薬師前」バス停徒歩4分 駅より車15分(5.5km)
東京都八王子市大楽寺町
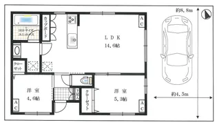
2LDK / 50.69m²
1階 / 地上1階建
新築
| 店舗名 | テクトホーム(株) |
|---|---|
| 住所 | 東京都大田区蒲田5-36-2 |
| 定休日 | 年末年始 夏季休暇 |
| 営業時間 | 10時~19時 |
| 交通 | - |
| 免許番号 | 東京都知事(2)第102548号 |
| 代表者名 | - |
| 所属団体 | (公社)全日本不動産協会東京都本部会員 (公社)首都圏不動産公正取引協議会加盟 |
| TEL | 03-6715-7433 |

10時~19時
年末年始 夏季休暇


11.5万円
管理費5,000円
2LDK / 50.69m²
1階 / 地上1階建
新築


11.5万円
管理費5,000円
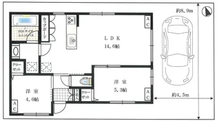
2LDK / 50.69m²
1階 / 地上1階建
新築


11.5万円
管理費5,000円
2LDK / 50.5m²
1階 / 地上1階建
新築


9.0万円
管理費5,000円
1LDK / 40.2m²
2階 / 地上3階建
築8年 / 賃貸マンション
現在0件保存されています。
あと50件保存することができます。
お気に入りページから保存した物件が確認できます。

削除しました。