



熊本県熊本市西区池田3
熊本電気鉄道/池田駅 歩13分
JR鹿児島本線/崇城大学前駅 歩15分
JR鹿児島本線/崇城大学前駅 歩15分
地上2階建 / 1975年06月 / 一戸建
リフォーム済。サービス品として新品エアコン3台付。
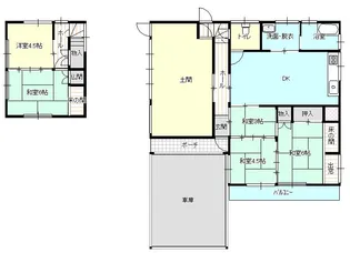
閑静な住宅街に広々6DKの一軒家。駐車場も2台無料。3台目以降は4,000円/月~。畳表替え、浴室、洗面、トイレフルリフォーム、洋室新品フローリングリフォーム。新生活にふさわしい綺麗なお部屋です。
ただいま4人が検討中!
| 賃料 / 管理費 | 敷金 / 礼金 | 間取り / 面積 | 階数 部屋番号 | 方位 | 詳細を見る | |
|---|---|---|---|---|---|---|
| 9.2万円 / ー | 9.2万円 / 無料 | 6DK / 80.46m² | ー ー | 東 | 詳細を見る |









