



東京都墨田区立川4
都営新宿線/菊川駅 歩5分
都営新宿線/住吉駅 歩11分
JR総武線/錦糸町駅 歩16分
都営新宿線/住吉駅 歩11分
JR総武線/錦糸町駅 歩16分
地上7階建 / 2020年11月 / 賃貸マンション
【仲介手数料無料】お問い合わせはまで
~素敵なお部屋との出会いは、不動産会社のスタッフで絶対決まる~【最新の空室確認をAIで実現、24時間いつでも、お問合せ直後に空室確認がとれます】
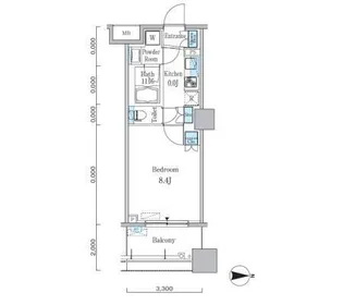
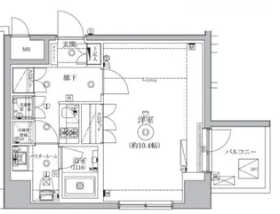
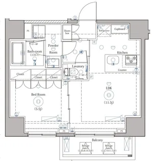
| 賃料 / 管理費 | 敷金 / 礼金 | 間取り / 面積 | 階数 部屋番号 | 方位 | 詳細を見る | |
|---|---|---|---|---|---|---|
| 11.4万円 / 1.0万円 | 11.4万円 / 11.4万円 | 1K / 25.19m² | 1階 ー | ー | 詳細を見る |




























































