



東京都板橋区高島平1
都営三田線/西台駅 歩9分
都営三田線/蓮根駅 歩14分
東武東上線/東武練馬駅 歩20分
都営三田線/蓮根駅 歩14分
東武東上線/東武練馬駅 歩20分
地下1地上7階建 / 2021年01月 / 賃貸マンション
成約者特典BOOKOFF買取価格10%UP(景品限度額内)
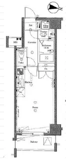
セキュリティ面は、オートロック・TVインターホンなどを備え付けているので安心して暮らせます。収納はシューズボックス・クロゼットなどが備え付けられているので、衣類や日用品の収納に重宝します。
ただいま1人が検討中!
| 賃料 / 管理費 | 敷金 / 礼金 | 間取り / 面積 | 階数 部屋番号 | 方位 | 詳細を見る | |
|---|---|---|---|---|---|---|
| 9.1万円 / 1.0万円 | 無料 / 18.2万円 | 1K / 27.47m² | 2階 ー | 東 | 詳細を見る |


























































