



東京都北区神谷3
東京メトロ南北線/王子神谷駅 歩7分
JR京浜東北線/東十条駅 歩12分
JR京浜東北線/東十条駅 歩12分
地上14階建 / 2021年11月 / 賃貸マンション
☆★設備もセキュリティーも充実したデザイナーズマンション★☆
■内見は現地待ち合わせでのご案内が可能です(要予約制)■契約金はクレジット決済が可能、分割払いも可能です
ただいま1人が検討中!
| 賃料 / 管理費 | 敷金 / 礼金 | 間取り / 面積 | 階数 部屋番号 | 方位 | 詳細を見る | |
|---|---|---|---|---|---|---|
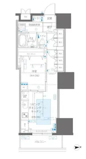
| 9.6万円 / 8,000円 | 9.6万円 / 9.6万円 | 1K / 25.58m² | 10階 ー | 西 | 詳細を見る |



















































