



東京都中野区中野5
JR総武線/中野駅 歩6分
東京メトロ丸ノ内線/新中野駅 歩20分
西武新宿線/新井薬師前駅 歩14分
東京メトロ丸ノ内線/新中野駅 歩20分
西武新宿線/新井薬師前駅 歩14分
地上7階建 / 1998年03月 / 賃貸マンション
◆全物件一括ご案内可能◆クレジット決済対応◆
【】/キャンペーン開催中の東京スタイル不動産/☆クレジットカード決済対応☆
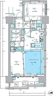
| 賃料 / 管理費 | 敷金 / 礼金 | 間取り / 面積 | 階数 部屋番号 | 方位 | 詳細を見る | |
|---|---|---|---|---|---|---|
| 23.0万円 / 1.0万円 | 23.0万円 / 23.0万円 | 2LDK / 60.25m² | 6階 ー | 南 | 詳細を見る |




























































