



東京都渋谷区幡ヶ谷3
京王新線/幡ヶ谷駅 歩9分
京王新線/初台駅 歩17分
京王線/笹塚駅 歩15分
京王新線/初台駅 歩17分
京王線/笹塚駅 歩15分
地上3階建 / 2021年10月 / 賃貸アパート
オーナー様と直接お取引している物件が多数!LINE対応可!
全ての物件を一括してご提案させていただきます!一人の営業マンが受付からご入居までをサポートさせていただきますので、安心してお部屋探しをお任せください!他社様掲載の物件もまとめて弊社でご内見可能です!
ただいま7人が検討中! 人気上昇中!注目の物件です!
| 賃料 / 管理費 | 敷金 / 礼金 | 間取り / 面積 | 階数 部屋番号 | 方位 | 詳細を見る | |
|---|---|---|---|---|---|---|
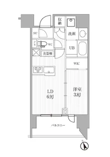
| 14.7万円 / 5,000円 | 7.35万円 / 22.05万円 | 1LDK / 39.33m² | 3階 ー | 南西 | 詳細を見る |




























































