



東京都目黒区五本木1
東急東横線/祐天寺駅 歩5分
東急東横線/学芸大学駅 歩13分
東急東横線/中目黒駅 歩19分
東急東横線/学芸大学駅 歩13分
東急東横線/中目黒駅 歩19分
地上3階建 / 1994年01月 / 賃貸マンション
こちらのお部屋は契約金カード決済可能です。
オンラインでの対応も可能です。諸条件で気になることなど気軽にご相談ください。初期費用、入居時期、周辺環境(治安や買い物等)LINEのお友達追加で簡単お部屋探し。詳細はお問合せ下さい。
ただいま12人が検討中! 人気上昇中!注目の物件です!
| 賃料 / 管理費 | 敷金 / 礼金 | 間取り / 面積 | 階数 部屋番号 | 方位 | 詳細を見る | |
|---|---|---|---|---|---|---|
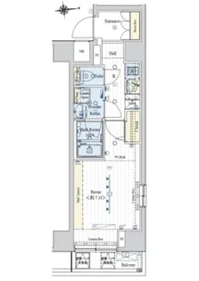
| 7.6万円 / ー | 7.6万円 / 7.6万円 | 1K / 24.9m² | 1階 ー | 南 | 詳細を見る |





















































