



東京都大田区下丸子2
東急多摩川線/武蔵新田駅 歩9分
東急多摩川線/下丸子駅 歩12分
JR京浜東北線/蒲田駅 歩33分
東急多摩川線/下丸子駅 歩12分
JR京浜東北線/蒲田駅 歩33分
地上5階建 / 2020年10月 / 賃貸マンション
★お部屋探しは『やさしさ不動産』にお任せください★
LINE・おでのお問い合わせがスムーズです★★類似物件多数取扱い!当社でまとめて全てご案内いたします!オンライン内見可能で隙間時間にぴったり!お気軽にお問い合わせください♪
ただいま3人が検討中!
| 賃料 / 管理費 | 敷金 / 礼金 | 間取り / 面積 | 階数 部屋番号 | 方位 | 詳細を見る | |
|---|---|---|---|---|---|---|
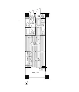
| 9.9万円 / 1.5万円 | 無料 / 無料 | 1R / 28.8m² | 3階 ー | 北西 | 詳細を見る |

























































