



東京都文京区千石4
都営三田線/千石駅 歩2分
JR山手線/巣鴨駅 歩10分
JR山手線/駒込駅 歩18分
JR山手線/巣鴨駅 歩10分
JR山手線/駒込駅 歩18分
地上10階建 / 2007年02月 / 賃貸マンション
【昨年度仲介実績No.2】お問合せ⇒
~素敵なお部屋との出会いは、不動産会社のスタッフで絶対決まる~【最新の空室確認をAIで実現、24時間いつでも、お問合せ直後に空室確認がとれます】
ただいま1人が検討中!
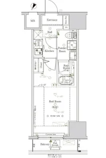
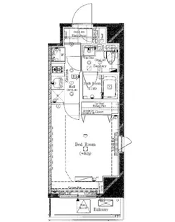
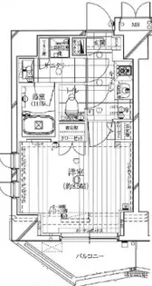
| 賃料 / 管理費 | 敷金 / 礼金 | 間取り / 面積 | 階数 部屋番号 | 方位 | 詳細を見る | |
|---|---|---|---|---|---|---|
| 11.3万円 / 5,000円 | 11.3万円 / 11.3万円 | 1K / 31.18m² | 4階 ー | 南東 | 詳細を見る |




























































