



東京都葛飾区堀切1
京成本線/堀切菖蒲園駅 歩15分
東京メトロ千代田線/綾瀬駅 車10分(3.6km)
京成押上線/四ツ木駅 歩7分
東京メトロ千代田線/綾瀬駅 車10分(3.6km)
京成押上線/四ツ木駅 歩7分
地上3階建 / 新築(2025年09月) / 賃貸アパート
☆ハウスパートナー青戸店おすすめのお部屋ですよ☆
☆こちらの物件の初期費用・設備の詳細情報や、ご来店予約をお急ぎのお客様はまでお気軽にお下さいませ☆
ただいま1人が検討中!
| 賃料 / 管理費 | 敷金 / 礼金 | 間取り / 面積 | 階数 部屋番号 | 方位 | 詳細を見る | |
|---|---|---|---|---|---|---|
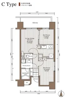
| 7.6万円 / 2,000円 | 無料 / 無料 | 1K / 25m² | 1階 ー | 北西 | 詳細を見る |




























































