



東京都大田区大森北1
JR京浜東北線/大森駅 歩5分
京急本線/大森海岸駅 歩10分
京急本線/平和島駅 歩16分
京急本線/大森海岸駅 歩10分
京急本線/平和島駅 歩16分
地上14階建 / 2006年03月 / 賃貸マンション
成約者特典BOOKOFF買取価格10%UP(景品限度額内)
荷物を直接受け取れないときは宅配ボックスに届くので、インターネットショッピングをよくする方や日中家にいないことが多い方におすすめです。居住者用の駐輪場が付いている物件です。
ただいま1人が検討中!
| 賃料 / 管理費 | 敷金 / 礼金 | 間取り / 面積 | 階数 部屋番号 | 方位 | 詳細を見る | |
|---|---|---|---|---|---|---|
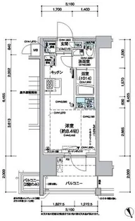
| 11.2万円 / 1.0万円 | 無料 / 無料 | 1K / 20.1m² | 5階 ー | 南西 | 詳細を見る |




















