



東京都渋谷区神泉町
京王井の頭線/神泉駅 歩2分
JR山手線/渋谷駅 歩13分
京王井の頭線/駒場東大前駅 歩12分
JR山手線/渋谷駅 歩13分
京王井の頭線/駒場東大前駅 歩12分
地上2階建 / 2016年11月 / 一戸建
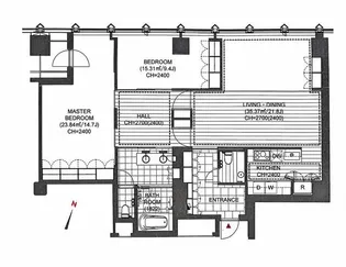
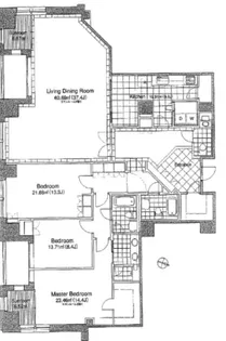
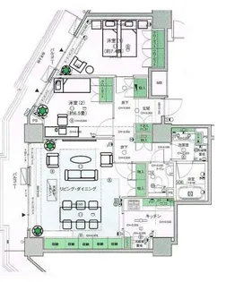
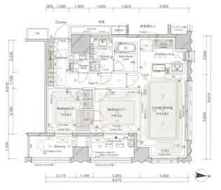
◆駅近◆戸建◆南向き◆駐車場無料◆3SLDK◆89平米以上
神泉駅徒歩2分の駅近戸建です!渋谷も徒歩圏内の好立地になります。ファミリー様にお勧めの3SLDK間取り!南向き、駐車場も無料にてご利用いただけます!お気軽にお問合せ下さい。
| 賃料 / 管理費 | 敷金 / 礼金 | 間取り / 面積 | 階数 部屋番号 | 方位 | 詳細を見る | |
|---|---|---|---|---|---|---|
| 40.0万円 / ー | 40.0万円 / 40.0万円 | 3SLDK / 89.72m² | 1-2階 ー | 南東 | 詳細を見る |



























































