



東京都江戸川区東葛西6
東京メトロ東西線/葛西駅 歩8分
東京メトロ東西線/浦安駅 歩23分
東京メトロ東西線/西葛西駅 歩23分
東京メトロ東西線/浦安駅 歩23分
東京メトロ東西線/西葛西駅 歩23分
地上9階建 / 新築(2025年04月) / 賃貸マンション
当物件はオンラインまたはお近くの店舗でご相談お申込を承ります
室内見学承ります・お客様のご都合に合わせてオンラインまたはお近くの店舗でご提案可・初期費用分割払い可・クレジットカード利用可・引越業者割引・初期費用のお見積や入居日のご相談もお気軽にお問合せください
ただいま1人が検討中!
| 賃料 / 管理費 | 敷金 / 礼金 | 間取り / 面積 | 階数 部屋番号 | 方位 | 詳細を見る | |
|---|---|---|---|---|---|---|
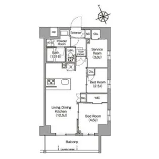
| 20.8万円 / 1.5万円 | 20.8万円 / 無料 | 2SLDK / 50.42m² | 2階 ー | 南西 | 詳細を見る |






























