



東京都文京区湯島2
都営大江戸線/本郷三丁目駅 歩9分
JR総武線/御茶ノ水駅 歩10分
東京メトロ千代田線/湯島駅 歩11分
JR総武線/御茶ノ水駅 歩10分
東京メトロ千代田線/湯島駅 歩11分
地下2地上11階建 / 2017年10月 / 賃貸マンション
★★Ivel お問い合わせは★★
ご入居日・諸条件の交渉など弊社にお任せください。物件のメリットだけではなく、経験豊富なスタッフがプロの目線からデメリットも含め詳しくご説明させていただきます!
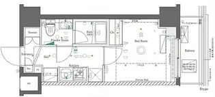
| 賃料 / 管理費 | 敷金 / 礼金 | 間取り / 面積 | 階数 部屋番号 | 方位 | 詳細を見る | |
|---|---|---|---|---|---|---|
| 19.9万円 / 1.5万円 | 19.9万円 / 9.95万円 | 1LDK / 41.54m² | 3階 ー | 南西 | 詳細を見る |




























































