



東京都中央区日本橋蛎殻町2
東京メトロ半蔵門線/水天宮前駅 歩2分
都営浅草線/人形町駅 歩7分
東京メトロ東西線/茅場町駅 歩9分
都営浅草線/人形町駅 歩7分
東京メトロ東西線/茅場町駅 歩9分
地上12階建 / 1998年12月 / 賃貸マンション
仲介手数料【0.88ヶ月】!現地お待ち合わせでのご見学可能!
・初期費用のクレジット決済・物件現地でのお待ち合わせ、オンライン、お車にてご送迎等、ご希望される方法でご案内いたします・お見積もり、審査も柔軟に対応いたしますのでお気軽にお問い合わせくださいませ!
ただいま2人が検討中!
| 賃料 / 管理費 | 敷金 / 礼金 | 間取り / 面積 | 階数 部屋番号 | 方位 | 詳細を見る | |
|---|---|---|---|---|---|---|
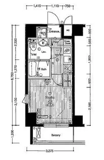
| 23.8万円 / 1.2万円 | 23.8万円 / 35.7万円 | 2LDK / 55.96m² | 11階 ー | 北東 | 詳細を見る |






















































