



石川県金沢市西都2
北陸鉄道浅野川線/上諸江駅 歩36分
北鉄バス/藤江北 歩7分
北鉄バス/藤江北 歩7分
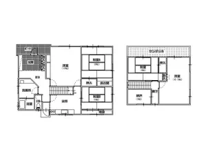
地上2階建 / 2005年04月 / 一戸建
県庁近く、日当たり良好・収納充実!天井吹き抜けのリゾート風
県庁近くにあり、階段途中にある3.3帖の和室が心地よいアクセント。事務所利用も可能で多彩な暮らし方に対応。オール電化で安心、駐車場2台込。収納も充実し、快適にお過ごしいただける明るい住まいです
ただいま10人が検討中! 人気上昇中!注目の物件です!
| 賃料 / 管理費 | 敷金 / 礼金 | 間取り / 面積 | 階数 部屋番号 | 方位 | 詳細を見る | |
|---|---|---|---|---|---|---|
| 11.6万円 / ー | 11.6万円 / 11.6万円 | 4LDK / 93.25m² | ー ー | 西 | 詳細を見る |





