



福岡県福岡市中央区春吉3
地下鉄七隈線/渡辺通駅 歩8分
地下鉄七隈線/天神南駅 歩8分
地下鉄空港線/天神駅 歩14分
地下鉄七隈線/天神南駅 歩8分
地下鉄空港線/天神駅 歩14分
地上14階建 / 2001年06月 / 賃貸マンション
バルコニーで何する?礼金操作できるので初期費用ご相談下さい!
失敗しないお部屋探しを信頼のバロックで!コツや落し穴等々すべてお伝えします。天神にお店があるのでお気軽にご来店ください!ご相談だけでも大歓迎!LINEでもやり取り可能です→@341zmpor
ただいま4人が検討中!
| 賃料 / 管理費 | 敷金 / 礼金 | 間取り / 面積 | 階数 部屋番号 | 方位 | 詳細を見る | |
|---|---|---|---|---|---|---|
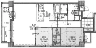
| 6.7万円 / ー | 無料 / 20.1万円 | 1K / 24.23m² | 13階 ー | 南東 | 詳細を見る |




























































