



大阪府大阪市天王寺区上之宮町
近鉄難波線/大阪上本町駅 歩7分
地下鉄谷町線/谷町九丁目駅 歩9分
JR大阪環状線/鶴橋駅 歩15分
地下鉄谷町線/谷町九丁目駅 歩9分
JR大阪環状線/鶴橋駅 歩15分
地上4階建 / 1973年01月 / 賃貸マンション
SSK株式会社より新規専任物件募集開始☆
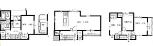
浴室・洗濯機置き場は前回新しくしました☆小型犬1匹飼育可能になりました♪エアコン1台は残置物となります☆洗濯機置き場はリビングにございます♪民泊は不可となります。
ただいま10人が検討中! 人気上昇中!注目の物件です!
| 賃料 / 管理費 | 敷金 / 礼金 | 間取り / 面積 | 階数 部屋番号 | 方位 | 詳細を見る | |
|---|---|---|---|---|---|---|
| 7.5万円 / 5,000円 | 無料 / 7.5万円 | 2LDK / 47.52m² | 3階 ー | 東 | 詳細を見る |




























































