



大阪府大阪市西区立売堀3
地下鉄中央線/阿波座駅 歩6分
地下鉄長堀鶴見緑地線/西長堀駅 歩7分
地下鉄四つ橋線/四ツ橋駅 歩11分
地下鉄長堀鶴見緑地線/西長堀駅 歩7分
地下鉄四つ橋線/四ツ橋駅 歩11分
地上10階建 / 2018年07月 / 賃貸マンション
お部屋探し・不要品処分・引越し無料または選べる家電もお任せ!
【大阪市内・近畿から】大阪への引っ越しが無料!お部屋探し・不用品の処分や買取・家電設置まで一貫サポート◎選べる家電(冷蔵庫・洗濯機・レンジ・テレビ・ベット・ソファ)&保証も充実で安心!
ただいま3人が検討中!
| 賃料 / 管理費 | 敷金 / 礼金 | 間取り / 面積 | 階数 部屋番号 | 方位 | 詳細を見る | |
|---|---|---|---|---|---|---|
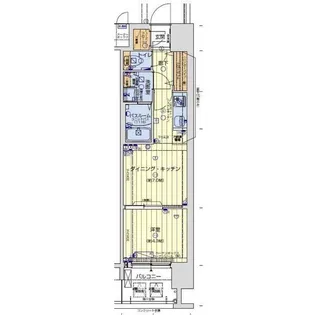
| 8.7万円 / 1.0万円 | 無料 / 8.7万円 | 1DK / 29.11m² | 4階 ー | 南 | 詳細を見る |




























































